Emilia

Where Space and Quality Meet Premium Design

About

Floor Plan

Virtual Tour

Calculator

About Emilia

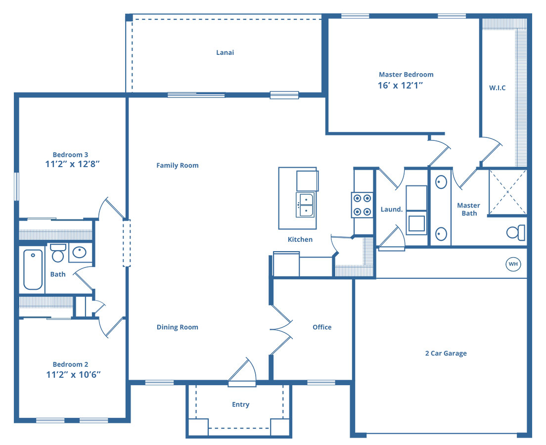
Between the relaxed den or dining area just to the right of the entry way, to the spacious backyard lanai just beyond the sliding door of the family room, the Emilia floor plan offers an attractive, thoughtful layout that is perfect for both the savvy couple and the growing family.

The two-car garage opens directly into the laundry room, allow ing a one-stop shop for dirty clothes, shoes, cleaning supplies, and other necessities to be stored conveniently out of view. With a master bedroom located on the far from the other two, couples with children can enjoy a higher level of privacy. Featuring a large master bathroom with his and her sinks, and a sizable kitchen pantry, the Emilia floor plan is an incredible option for starting your brighter future with EcoSun homes.



Starting at $1,492 / Month

Floor Plan

TOTAL AREA

2,394 (SqFt)

LIVING AREA

1,670 (SqFt)

BEDROOMS

3-4

BATHROOMS

2

CAR GARAGE

2 cars – 393 (SqFt)

ENTRY

62 (SqFt)

LANAI

168 (SqFt)

Package 1
Package 2
Package 3

TOTAL AREA

2,394 (SqFt)

LIVING AREA

1,670 (SqFt)

BEDROOMS

3-4

BATHROOMS

2

CAR GARAGE

2 cars – 393 (SqFt)

ENTRY

62 (SqFt)

LANAI

168 (SqFt)

Package 1
Package 2
Package 3

TOTAL AREA

2,394 (SqFt)

LIVING AREA

1,670 (SqFt)

BEDROOMS

3-4

BATHROOMS

2

CAR GARAGE

2 cars – 393 (SqFt)

ENTRY

62 (SqFt)

LANAI

168 (SqFt)

Package 1
Package 2
Package 3

Virtual Tour

Virtual Tour is for Illustrative Purposes only and is not an exact representation of current plans. Certain features in the virtual tour are not available. For most up to date plans and offerings please consult with an Ecosun Homes Ambassador.

Calculator

Calabria

3 bedrooms , 2 Bathrooms , 1,252 Sqft

Starts From: $266,995

Veneto

3 Bedrooms, 2 bathrooms,  1,510 Sqft

Starts From: $266,995

Lazio

4 Bedrooms, 2.5 bathrooms , 1,919 Sqft

Starts From: $310,995

Trentino

4-5 Bedrooms, 3 Bathrooms , 2,191 Sqft

Starts From: $321,995

Tuscany

4-5 Bedrooms, 3 Bathrooms, 2,925 SqFt

Starts From: $310,995

Prequalify Online

The dream of affordable, quality homeownership is within reach with EcoSun Homes.

Prequalify Online

The dream of affordable, quality
homeownership is within reach with
EcoSun Homes.

Contact us

Speak with one of our
EcoSun Ambassadors Today

Schedule Appointment

See What’s in store
at our design studios

A series. Depends on location, P&I only. $302,995 purchase price. 30 year conventional loan, 20% down, 6.25% interest